- 開きドアシリーズ
- スライドドアシリーズ
- スイングドアシリーズ
- スイングドアクリアーウェイ
- 施工事例
-
開きドアシリーズ
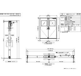
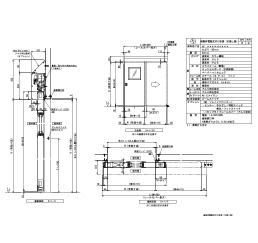
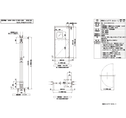
片開きドア
アルミ枠(エアタイト・セミエアタイト・ゼロタイト・ズリ)
-
アルミ枠
片開きエアタイト
四方
グレモンハンドル -
アルミ枠
片開きフラッシュ
四方・セミエアタイト
レバーハンドル -
アルミ枠
片開きエアタイト
三方・ゼロタイト
グレモンハンドル -
アルミ枠
片開きフラッシュ
三方・ゼロタイト
レバーハンドル -
アルミ枠
片開きフラッシュ
三方・ズリ
レバーハンドル
樹脂枠(エアタイト・セミエアタイト・ズリ)
☆覗窓
アルミ枠・樹脂枠共に下記素材に対応できます。
透明ガラス・アクリル・ポリカ・強化ガラス・網入りガラス・ペアガラス5⑧5
-
-
スライドドアシリーズ
片引きスライドドア
アルミ枠(完全手動・油圧式自閉・自動)
樹脂枠(完全手動・油圧式自閉・自動)
☆覗窓
アルミ枠・樹脂枠共に下記素材に対応できます。
透明ガラス・アクリル・ポリカ・強化ガラス・網入りガラス・ペアガラス5⑧5
☆引残し有対応可能
-
スイングドアシリーズ
SCG
SCGの特長
<気密性の求められる場所に>
防錆性に優れた表面材で、防水処理を施した丈夫なランバーコアを挟み込みドア本体の周囲にネオプレーンのガスケットを取付けた高気密タイプです。
食品加工場、ショッピングセンターの売場と作業室の出入口等、防塵・防臭防虫性能が求められる場所に多く用いられています。用途
- ・食品加工室
- ・バックヤード
- ・コンビニ
- ・ファーストフード
- ・レストラン
SCG-3
表面材として全面にステンレスを使用し耐久性・防食性に優れたドアです。
SCG-1
表面材として上部に特殊アルミニウム合金、下部にステンレスを使用しています。
FCG
FCGの特長
<気密性と断熱性を求められる場所に>
ドア本体の周囲にネオプレーンのガスケットを取付けた高気密タイプのドアに、更に断熱性能を加えました。
防水処理をした合板2枚の間にポリスチレンフォームを挟み込んだものをドアの芯材として使用し、窓もアクリルの二重構造となっています。
室温管理の必要な食品工場、蘇生庫、冷蔵室等に最適です。用途
- ・食品加工室
- ・蘇生庫
- ・冷蔵室
FCG-3
表面材として全面にステンレスを使用しています。
FCG-1
表面材として上部に特殊アルミニウム合金、下部にステンレスを使用しています。
-
スイングドア クリアーウェイ(SWINGDOOR CLEARWAY)
安全性で選ぶならフランスからやって来たスイングドアCW

- 安全性
全面クリアータイプ(CW-1)なら視認性に優れ、ドアの反対側に子供がいても安心です。また、ドアとドアの間に指を挟んでケガをする心配はありません。 - 機能性
トルク(閉じスピード)調整可能なバネ付き開閉装置は、耐風圧性能にも優れています。 また、荷物を載せたカートが通過しても荷崩れし難く安心です。 - デザイン性
フランスのエッセンスの効いたカラー・デザインが開口部を飾ります。 - コストパフォーマンス
ドア保護のためのプロテクター類は不要です。また、ドアサイズが大きくなるほど、同サイズのフォークリフト対応型スイングドアよりコストパフォーマンスに優れています。 - 耐久性・耐衝撃性
7㎜、10㎜のPVCシートを採用し、耐衝撃開閉テスト30万回をクリアーしています。フォークリフトでの通過も可能です。 - メンテナンスフリー
電動シートシャッターとは異なり、電気を使用しないバネ式なので ランニングコストはかかりません。取付工事も簡単です。 - 用途
バックヤード

コーナープレート

アルミ製フレーム

上部固定金物

ドア下部金物&下部固定プレート

端部カバー&シールガスケット

補強シール


- モデル
- スイングドアCW-1(全面クリアーシート)
スイングドアCW-2(上部クリアー・下部カラーシート)
- サイズ
- スモール
シート厚7mm 最大開口 W2500×H2500
ラージ
シート厚10mm 最大開口 W3000×H3500
- フレームカラー
- アルマイトシルバー・ホワイト
- シート
- 標準色はクリアー及び不透明グレーですが、他のカラー機能性シートも随時追加予定です。詳細はお問い合わせください。
- 安全性
-
施工事例お客様のニーズに合わせてドアを製作致します。ぜひ、ご相談ください。









































